SvD_BULK_NAK10 Halfdiep extra buitenbeelden_6

Het Halfdiep

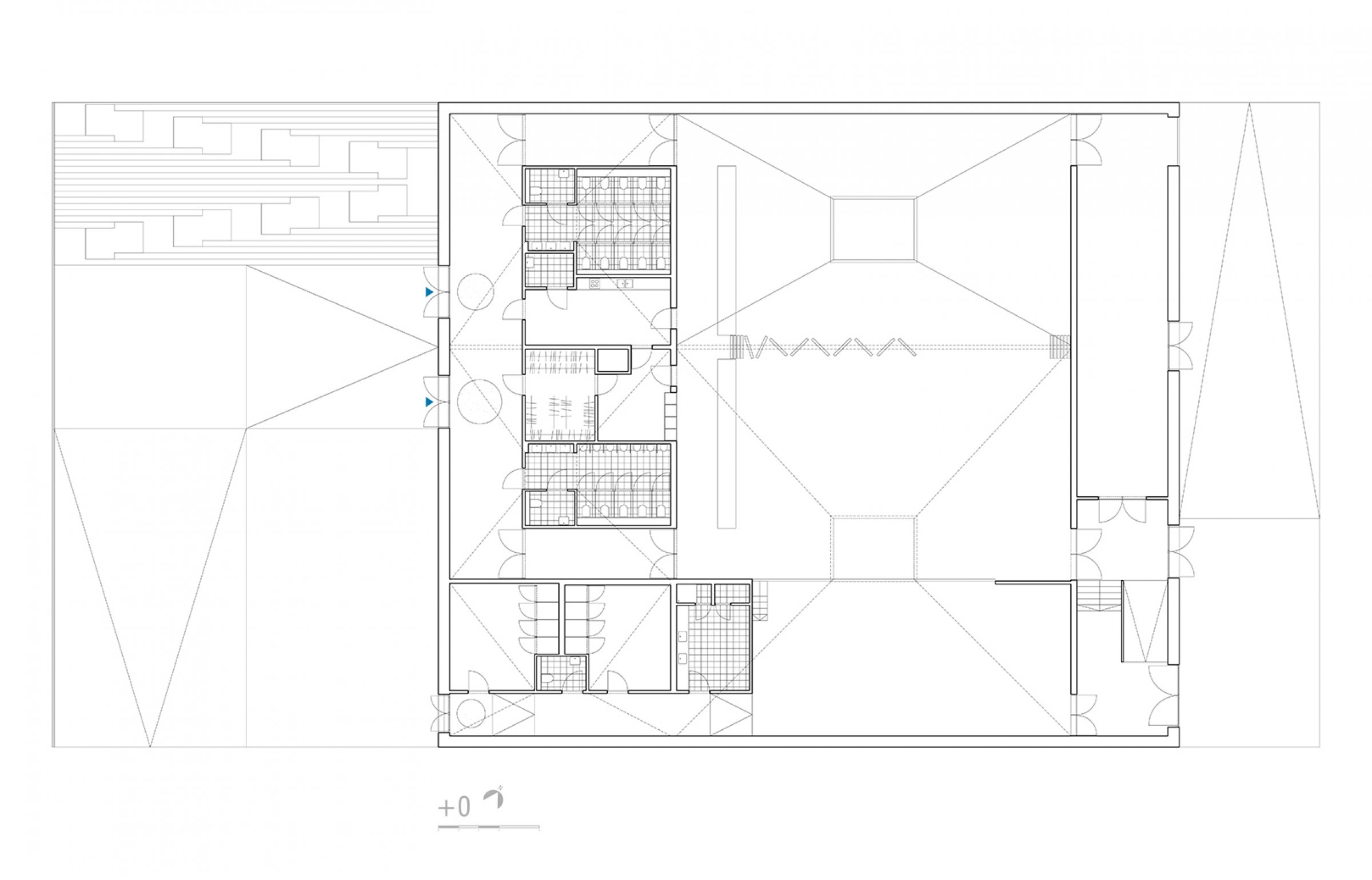
Middenin de kern van een groot bouwblok ligt de bestaande stedelijke sporthal en zwembad De Nachtegaal. Het Autonoom Gemeentebedrijf organiseert een wedstrijd voor een nieuwe polyvalente zaal van 1000m². Het programma is eenvoudig, net zoals het bouwbudget. Twee opdeelbare zalen met keuken/berging/toog/vestiaire en sanitair, een vast podium met backstage en twee aparte repetitielokalen voor lokale bandjes. Onze opdracht wordt uitgebreid met de aanleg van een kunstgrasveld en de studie naar de inpassing van een groot ondergronds bufferbekken.


Polyvalente zaal, parking en sportvelden
Kontich
Besloten prijsvraag
2010-2015


Opdrachtgever: AG Kontich/Waterlink
Technieken: Bureau Bouwtechniek
Stabiliteit: Planet Engineering
Landschap: Stefan Morael

DSC_4991
SvD_BULK_NAK10 Halfdiep_1

Het uiteindelijke voorstel voor het hele binnengebied herorganiseert de bestaande en nieuwe gebouwen en sportvelden en de parkings tot een consistent ruimtelijk geheel. De impact van verkeer en verhardingen wordt waar mogelijk teruggedrongen, om ruimte te maken voor groen. Een verzonken buitenkoer organiseert het komen en gaan, geeft het nieuwe gebouw een gezicht en dramatiseert de aanwezige forse hoogteverschillen. Deze nieuwe publieke ruimte vormt het hart van het nieuwe complex. Het gebouw is vormgegeven als een feestelijke bunker met stoere materialen en een fenomenaal dak.

DSC_2798 R
DSC_3554
SvD_BULK_NAK10 Halfdiep_19 warmer

Het verzonken gebouw kent een hoge graad van inertie en akoestisch isolatie, de thermisch toegankelijke constructie van beton maakt het gebouw weinig vatbaar voor energieschommelingen. Het groendak zorgt voor regenwaterbuffering, afkoeling door verdamping en integratie in het landschap. De warmte van de feestvierders wordt door een warmtepomp en captatienet opgeslagen in de bodem onder het gebouw, en voorziet in de resterende energievraag. Het is de eerste passiefhuiszaal in zijn soort. We maakten een publiek gebouw dat net als zijn programma eenvoudig is, een gebouw dat hufterproof moest zijn en beperkt moest worden ingericht, maar niet schraal mocht worden. De zaal is uiteindelijk een soort publieke huiskamer geworden, die mensen verwelkomt op een inclusieve en integrale manier.

NAK10.600 S-NIEUW plannen
SvD_BULK_NAK10 Halfdiep_26 warmer
SvD_BULK_NAK10 Halfdiep_5 warmer
SvD_BULK_NAK10 Halfdiep_20 warmer
NAK10.600 S-NIEUW snede02
NAK10.600 S-NIEUW snede01
SvD_BULK_NAK10 Halfdiep extra buitenbeelden_9
NAK10.500 W-150511 (38)
DSC_5602
SvD_BULK_NAK10 Halfdiep_2
DSC_5086
SvD_BULK_NAK10 Halfdiep_23 warmer
SvD_BULK_NAK10 Halfdiep_7 warmer
SvD_BULK_NAK10 Halfdiep_9 warmer
SvD_BULK_NAK10 Halfdiep_10 warmer
SvD_BULK_NAK10 Halfdiep extra buitenbeelden_5
DSC_5609
bulkbouwteenfeestje-6

fotografie Sepp van Dun, Jeroen Broeckx